Two-Storey Rear Extension Cost Milton Keynes 2026 — Real Numbers From a Live Job

If you’re a builder in Milton Keynes, Northamptonshire, or the wider East Midlands pricing a rear extension and internal remodel, this is the article you’ve been looking for.

This isn’t a national average pulled from a data book. It’s a complete, zone-by-zone cost breakdown from a real job we priced in March 2026 — a two-storey rear extension on a detached house in Walton Park, Milton Keynes, with full internal alterations to the existing ground floor and first floor.

The total came out at £66,613 ex VAT (£79,936 inc 20% VAT).

Here’s exactly how we got there.

The Project — 7 Cook Close, Walton Park, Milton Keynes MK7 7JA

The client was Jack Moliterno from Build Safe Bedford Ltd, a residential contractor operating across Bedfordshire and Buckinghamshire. The architect was Inner Create (Marc Bentley / Darren Murphy), with drawings issued under Project No. 25038.

The scope had two distinct elements:

Element 1 — Rear Extension (new footprint, ~12m²): Demolish the existing conservatory on the rear elevation and build a new brick-and-block rear extension in its footprint. New cavity walls, block and beam floor with underfloor heating, pitched Welsh slate roof, aluminium sliding door, new window, and rainwater goods.

Element 2 — Internal Remodel (existing GF + FF): Remove the load-bearing wall between the existing kitchen and dining room, install steel beam B1, new ECLISSE pocket door, full replaster and redecoration to all disturbed rooms. New combi boiler with 6 radiators throughout plus UFH to the extension and dining zone (~27m²).

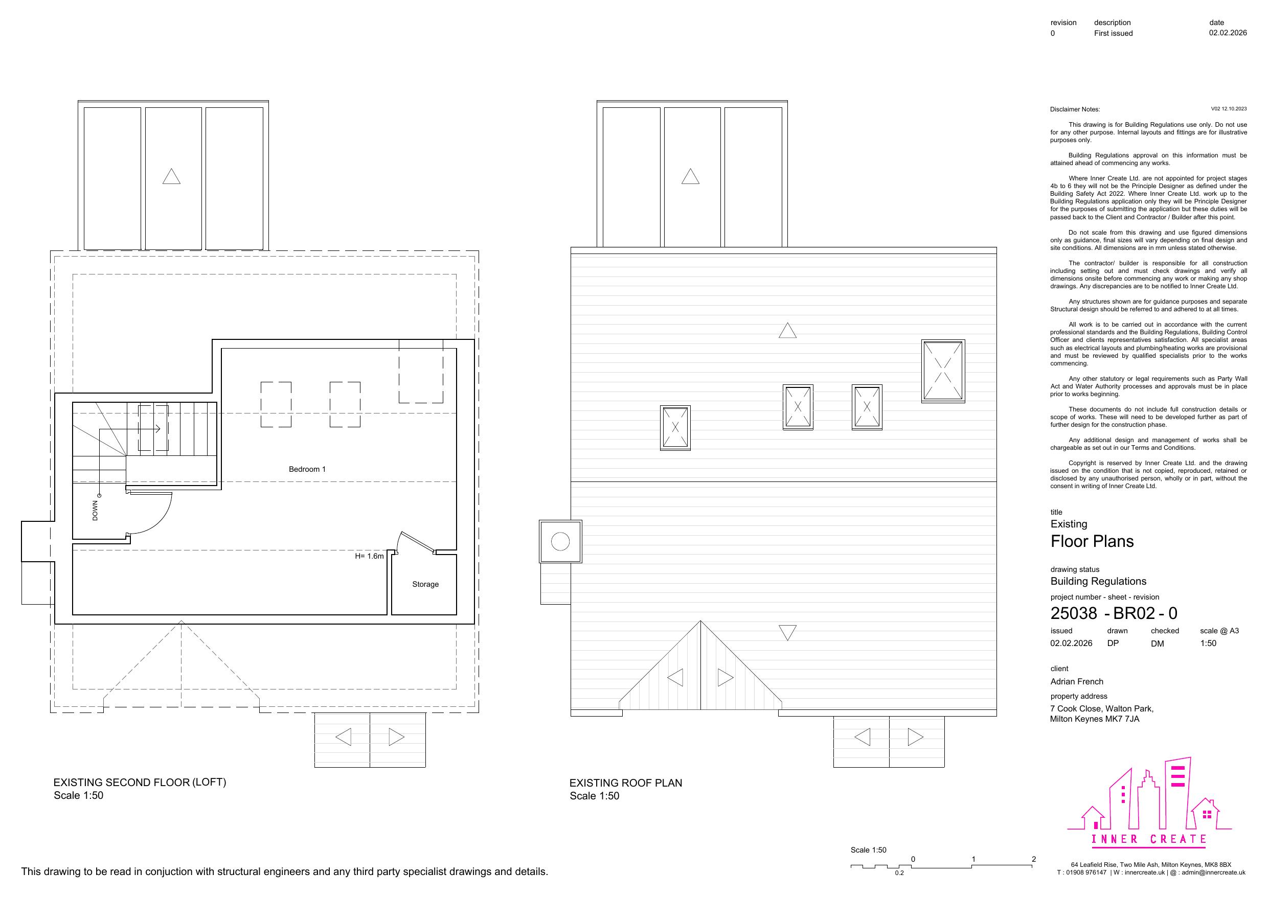
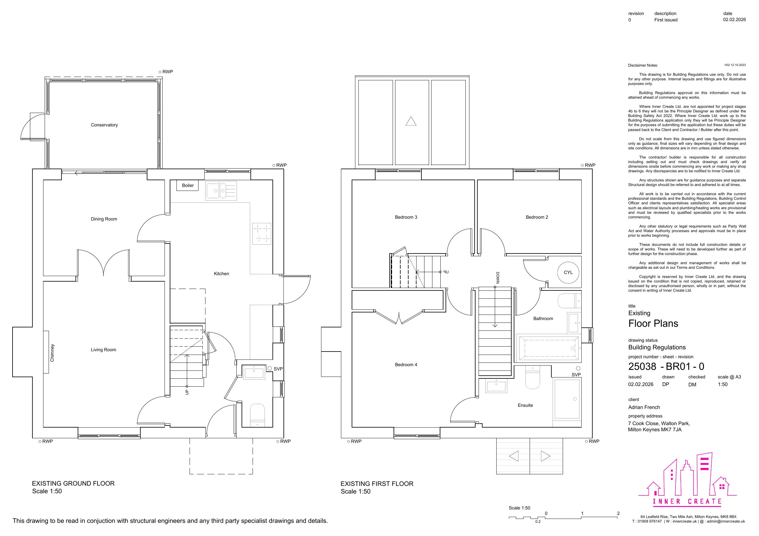
7 Cook Close Milton Keynes existing floor plans - rear extension drawings
Existing floor plans showing conservatory footprint (rear) and proposed extension zone — Inner Create, Drawing 25038-BR-A

The Full Cost Breakdown — Zone by Zone

We price every job in build sequence — from prelims through to decoration. Here’s what each zone cost on this project:

Zone 1 — Preliminaries & Site Setup: £14,575

Prelims are one of the most consistently under-priced elements on residential extensions. On this job they came to £14,575 — that’s 22% of the total build cost before a single brick was laid.

What’s in there:

  • Scaffold (PC Sum): £3,000
  • Grab lorry / muck away (3 loads): £1,350
  • Building Control approval fee (PS): £900
  • Structural Engineer design fee (PS): £1,200
  • Party Wall Act surveyor (PS): £1,400
  • Vehicle allowance — 2 tradesmen × 9 weeks × 5 days × £25/day: £2,250
  • Welfare unit hire (9 weeks): £675
  • Skip hire (4 nr 8-yard): £1,280
  • Temporary propping (6 nr Acrow props): £570
  • Site protection, H&S, tools, labour: £950

The statutory fees alone — Building Control, Structural Engineer, Party Wall — total £3,500 as Provisional Sums. These are legal requirements on a job like this, not optional extras. They’re almost never included in builders’ rough estimates.

Zone 2 — Demolition & Strip-Out: £6,783

The existing conservatory had to come out first — strip the roof glazing, dismantle the aluminium frame, break out the dwarf walls and base slab, cart all arisings to skip. Allow 32 hours of labour at £38/hr for that alone.

The load-bearing wall removal between kitchen and dining was the most critical piece of work on the whole project. Temporary propping went in first, then the masonry was cut out in sections, the steel beam B1 (178×102×19 UB, grade S355JR) was installed with padstones bedded in Class II mortar, fire protection casing applied, and the temporary props removed once the steel was load-bearing. Total demolition zone: £6,783.

Note the structural steel supply (£1,800 PS) is included here — this covers the beam, padstones and all connections, subject to final SE confirmation. This is one of the most commonly omitted items on internal remodel quotes.

Zone 3 — Rear Extension (~12m² GFA): £21,113

This is the core new-build work — constructing the new extension in the conservatory footprint. The 12m² footprint doesn’t sound like much, but properly priced it comes to £21,113 — that’s £1,759/m² of added floor area, which sits comfortably within the Milton Keynes benchmark range of £1,500–£2,200/m² for a small rear extension.

7 Cook Close Milton Keynes proposed floor plans extension layout
Proposed floor plans showing new extension layout, steel beam position, and room configuration

Zone 3 includes:

  • Strip foundations — excavate, dispose, concrete C25/30 pour
  • DPC, damp-proof membrane, radon barrier (Milton Keynes sits in a moderate radon area)
  • Block and beam suspended floor system with insulation quilt and screed
  • Cavity walls — inner leaf dense concrete blockwork (100mm), 100mm full-fill cavity insulation (Dritherm 37), outer leaf facing brick to match existing
  • Pitched roof — rafters, OSB deck, breathable membrane, Welsh slate tiles (PC Sum £2,800), soffits, fascias, guttering
  • Aluminium sliding door ED1 (PC Sum £3,200), window W1 (PC Sum £650), 2 No. rooflights RL1 (PC Sum £1,300)
  • Cavity trays above all lintels — this is one of the most commonly missed items on extension work
  • ACO channel drain at the sliding door threshold
  • External rendering to new blockwork (sand/cement base + silicone topcoat)
  • Rainwater goods — fascia-fixed gutters and downpipes connecting to existing drainage

Zone 4 — Internal Works: £8,674

The internal remodel covered the full ground floor — new floor screed to dining and extension zones, all internal partitions/doorsets disturbed by the structural works, ECLISSE pocket door installation to the new opening, internal linings to all disturbed walls and ceilings, and all plasterboard + skim to the new extension interior.

The ECLISSE pocket door (concealed sliding door system) is a recurring favourite on open-plan kitchen/dining jobs — it gives the option to close off the kitchen without the swing of a traditional door. Allow £680 supply + 8hrs installation labour.

Zone 5 — Plumbing, Heating & UFH: £10,655

This was one of the more substantial zones given the scope of the M&E works. A new combi boiler was installed to replace the existing system, with 6 new radiators distributed throughout the house. The extension and dining zone (~27m²) was fitted with a wet underfloor heating system — screed-embedded pipework, manifold, controls.

UFH in an extension connected to a new combi boiler is almost standard specification now — clients expect it, and it eliminates the radiator in the new room. Allow £3,200–£3,800 for a 27m² UFH system properly installed.

All pipework, connections, drainage, and pressure testing included. Note: electrical works were specifically excluded from this scope and quoted separately by the client’s electrician.

Zone 6 — Decoration: £4,814

Full decoration to all rooms disturbed by the works — preparation, mist coat, 2 coats emulsion to all walls and ceilings, gloss to woodwork, skirting, architraves and window boards throughout affected areas. Approximately 150m² of decorating surface. This is another zone that’s often completely absent from builder estimates — decoration tidy-up to existing disturbed rooms is a real cost that lands on someone at the end of the job.

7 Cook Close Milton Keynes existing elevations conservatory rear
Existing rear elevation showing the conservatory to be demolished and replaced with the new extension

The Total — What This Job Cost

Zone Description Cost (Ex VAT)
Zone 1 Preliminaries & Site Setup £14,575
Zone 2 Demolition & Strip-Out £6,783
Zone 3 Rear Extension (~12m² GFA) £21,113
Zone 4 Internal Works £8,674
Zone 5 Plumbing, Heating & UFH £10,655
Zone 6 Decoration £4,814
SUBTOTAL (Ex VAT) £66,614
VAT @ 20% £13,323
TOTAL (Inc VAT) £79,936

What Does a Rear Extension Cost in Milton Keynes? — The Benchmarks

This job came out at £1,759/m² of new floor area (ex prelims + VAT). Here’s how that compares to the broader Milton Keynes and East Midlands market in 2026:

Extension Type Cost Range (ex VAT) £/m²
Small single-storey rear (10–15m²) £25,000–£45,000 £1,500–£2,200/m²
Mid-size single-storey rear (15–25m²) £35,000–£65,000 £1,400–£2,000/m²
Two-storey rear extension (20–30m²) £55,000–£110,000 £1,600–£2,500/m²
Full internal remodel (GF + FF) £20,000–£50,000 £400–£800/m² affected
Extension + internal remodel combined £50,000–£120,000 Depends on scope

These benchmarks apply to Milton Keynes and the surrounding area — Northampton, Bedford, Luton, Aylesbury, Buckingham. For London or the South East, add 25–40%.

The 6 Items Most Extension Quotes Miss

After pricing over 60 UK residential projects, these are the items that show up missing in builder estimates time and time again. On the Cook Close job, all six were included from day one.

1. Statutory fees in prelims. Building Control (£900), Structural Engineer (£1,200), Party Wall surveyor (£1,400) = £3,500 on this job. Almost never in a rough estimate. Always in ours.

2. Vehicle allowance. Two tradesmen driving to site every day for 9 weeks = £2,250. At £25/day per person in Milton Keynes, that’s real money. It’s not in most quotes.

3. Structural steel properly priced. The beam, padstones, fire casing, temporary propping, needling and installation labour — all separate line items. A single “steelwork — allow £X” doesn’t tell anyone anything.

4. Cavity trays above all lintels. Every lintel in an external cavity wall needs a cavity tray above it to prevent water tracking through the cavity. Missing on most small extension quotes. A Building Inspector will flag it. You’ll pay for it either way.

5. ACO channel drain at the sliding door. Every rear patio door, bifold or sliding door at ground level needs an ACO drain at the threshold. Without it, water tracks in under the door. It’s not expensive — allow £180–250 — but it’s consistently missing.

6. Decoration to disturbed rooms. When you remove a wall, fit new plasterboard, and replaster, the decoration tidy-up to all affected rooms is a real cost. On this job it was £4,814. Often completely absent from estimates. Then there’s a dispute at the end.

Why the First Price Was Wrong

This project went through two versions of the QS. The first version was based on incorrect drawings — the architect had issued an earlier drawing set and the scope had changed significantly by the time SoW V2 was issued on 24 March 2026.

This happens regularly. Architects revise drawings. Clients change scope. The client emails a brief and the brief doesn’t match the drawings. We priced this job twice — the second time from the correct drawings — and the difference was material.

The lesson: always price from the drawings, not the brief. The brief says “small rear extension.” The drawings show the full scope. They’re never the same.

Getting Your Extension Priced in 48 Hours

We priced this job — full zone-by-zone BOQ, six trade sections, all quantities from drawings — in 48 hours. Build Safe Bedford had their numbers by the end of the week they sent us the drawings.

If you’re a contractor in Milton Keynes, Bedfordshire, Northamptonshire, or anywhere across the UK and you’ve got an extension or internal remodel coming up, send us the drawings. We’ll have a full pricing estimate back to you in 48 hours.

No vague round numbers. No guesses. A proper document your client can sign off on.

david@rapidqs.co.uk or rapidqs.co.uk

David Baker — RapidQS UK
Quantity Surveying & Pricing Estimates for UK Residential Contractors

Leave a Comment

Your email address will not be published. Required fields are marked *

4 × three =

Scroll to Top